imobiliare .net
Login
Inregistrare
Anunt
Tur 360
Alerte
Favorite
Mesagerie
Favorit
Sesizeaza neregula

Inchirieri Apartamente 3 camere NORDULUI CARTIERUL FRANCEZ

An constructie
2007
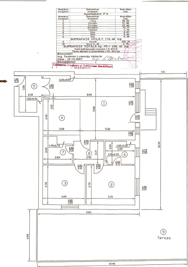
Suprafata
110 m2
Confort
I
Tip apartament
semidecomandat
Etaj
P / 5
Tip imobil
Bloc mixt
Nr. dormitoare
2
Interior
Proaspat renovat
Nr. bai
2
CE clasa
B
ID
315767341

Herastrau Le Club Va propunem spre inchiriere un apartament spatios, luminos cu 3 camere, avand o suprafata utila de 110 mp si o terasa circulara de 126 mp. Apartamentul este impartit dupa cum urmeaza: hol intrare, living cu bucatarie open space, 2 dormitoare si 2 bai. Se inchiriaza mobilat impreuna cu un loc de parcare in garajul subteran.


  • Aer conditionat
  • Usa metalica
  • Termopan
  • Bucatarie mobilata
  • Geam baie
  • Loc parcare
  • Paza
  • Apometre


Pozitia pe harta Inchirieri Apartamente 3 camere NORDULUI CARTIERUL FRANCEZ